Дом по адресу Краснодар, Сириус, за 270000000 р.

Адрес Краснодар, Сириус, Набережная улица,6
Цена 270 000 000 р.
Площадь дома 739,6 м2, участка 7,3 м2
Кол-во комнат 12
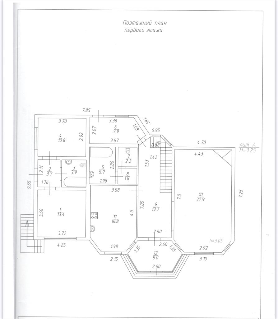
Представляем вашему вниманию – действующий гостевой дом, расположенный в одном из престижных и востребованных районов Черноморского побережья, на Федеральной территории "Сириус"! Это не просто объект недвижимости, а отлаженный механизм получения стабильного и высокого дохода, проверенный временем и лояльностью гостей. Гостевой дом зарекомендовал себя как надежное место для отдыха, привлекая постояльцев из года в год. Его узнаваемость и безупречная репутация обеспечивают высокую заполняемость на протяжении всего года: лето - до 90%, межсезонье - до 70%, зима - 50-60%. Окупаемость: 10-15 лет. В собственности 8 лет. На участке 730 кв.м., под гостиничный бизнес расположены, три здания общей площадью 739,6 кв.м. Номерной фонд: 12 уютных номеров различной категории и вместимости, расположенных во всех строениях. Каждый номер и вспомогательные помещения полностью укомплектованы мебелью, текстилем и техникой, готовые к приему гостей в любое время года. Здание 1 (147,6 кв.м.) - 4 номера. Здание 2 (179,5 кв.м.) - 6 номеров. Плюс два отдельных номера с собственным входом. Здание 3 (358,9 кв.м.) - двухэтажный жилой дом с мансардой (гостиная, кухня, санузлы, 3 спальни, гардеробная). Этот дом может служить как комфортным жильем для владельцев, так и отдельным объектом для сдачи в аренду. На территории гостевого дома созданы все условия для приятного времяпрепровождения гостей: кафе, где подают блюда домашней кухни, оборудованная мангальная зона и уютная беседка, два бассейна (детский и взрослый -11 м), джакузи, шезлонги, сауна, бильярд (12 футов). Коммуникации: Центральная вода + скважина, газ, электричество 30 кВт. Пожарная сигнализация, тревожная кнопка, 7 камер видеонаблюдения. Идеальная локация: Близость к морю, всего 5 минут неспешной прогулки по живописной набережной реки Мзымта. Развитая инфраструктура: в шаговой доступности ТРК "Мандарин",кафе, рестораны, атмосферная набережная. Культурные и развлекательные объекты: Дендропарк "Южные культуры", аквапарк, знаменитый парк аттракционов "Сочи Парк", дельфинарий, стадион "Фишт", Имеретинский морской порт. Транспортная доступность: Удобное расположение обеспечивает быстрый доступ к центру Адлера, курортам Красной Поляны, аэропорту (15 минут) и железнодорожному вокзалу (12 минут). "Сириус" – это место, которое привлекает туристов круглый год, гарантируя стабильный спрос на размещение. Данное предложение идеально подходит для: семейного бизнеса, желающих управлять собственным отелем. Инвесторов, ищущих надежный и прибыльный бизнес. Не упустите возможность приобрести успешный бизнес с гарантированным доходом! Документы готовы к продаже. Один собственник, более 5 лет. Планировка всех помещений по запросу, технически возможно добавить только 3 файла. Причина продажи - смена направления деятельности. Вас заинтересовало предложение, свяжитесь с нами, мы организуем просмотр и подробную презентацию объекта. Эксперт - Татьяна Ахмерова.
Объявление № 23273787
Дата подачи:
4 октября 2025 г. 1:33
Дата обновления:
4 октября 2025 г. 1:33
Просмотров 16 Хотите продать быстрее?

Продавец
Татьяна Ахмерова
Показать номер телефона
Пожаловаться
Комментарии:
Добавить